In unserem Wohnstift Am Langelinienwall Hildesheim wird zum 01.10.2023 eine Wohnung frei!
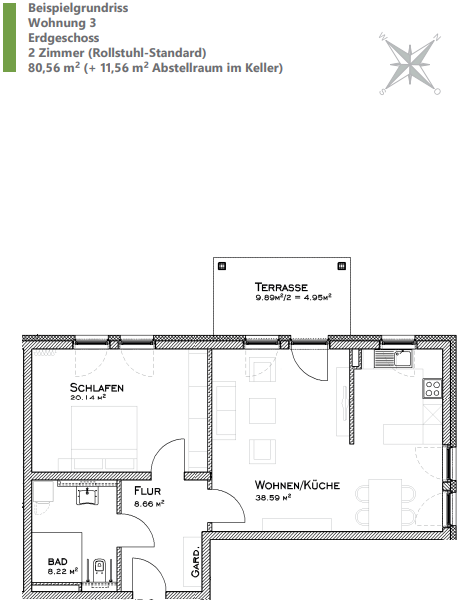
Die schöngeschnittene, rollstuhlgerechte Wohnung mit großem Balkon verfügt über 80,56 m², einen Kellerraum und eine Einbauküche. Es besteht die Möglichkeit, einen PKW-Stellplatz auf dem Grundstück anzumieten.
In dem 2020 errichteten Neubau stehen 25 seniorengerechte Wohnungen zur Verfügung. Die Mieterinnen und Mieter des Hauses können bei Bedarf auch die DRK-Tagespflege im gleichen Gebäudekomplex nutzen.
Für weitere Informationen und Besichtigungstermine wenden Sie sich bitte an den DRK-Kreisverband Hildesheim unter Tel. 05121 936000.
